Leave a Message

Thank you for your message. We will be in touch with you shortly.

Home Search

Property Description

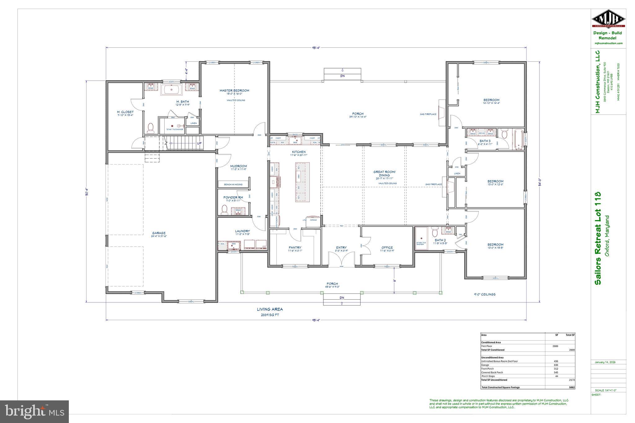
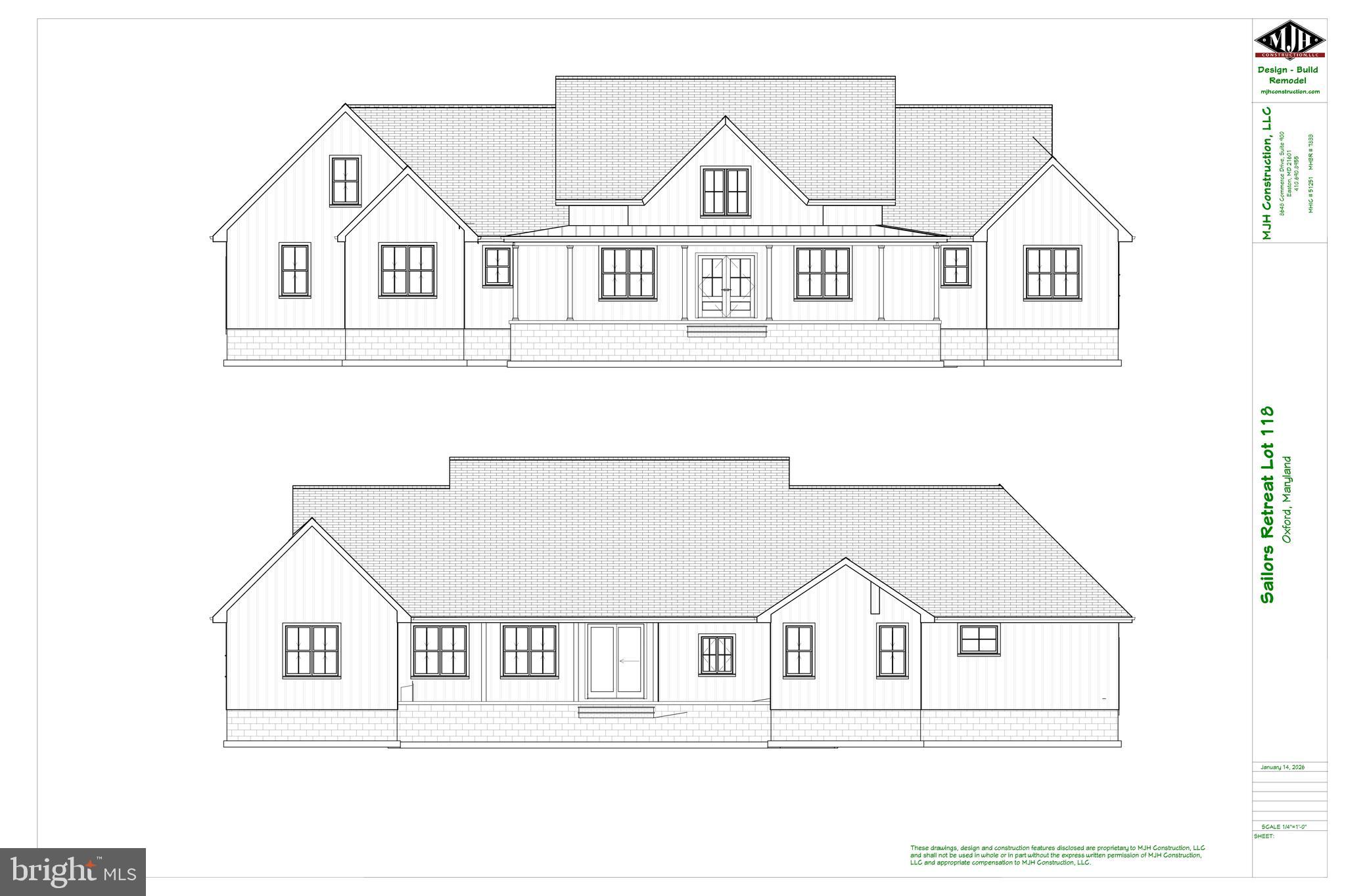
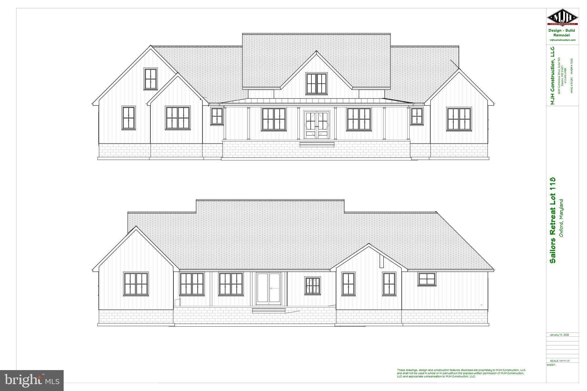
Location, location, location! New Construction waterfront home on Maryland's Eastern Shore! This is a "To Be Built" home located off the highly sought-after Oxford corridor. This SDA-approved 6-bedroom homesite allows for a spacious waterfront residence thoughtfully designed to take full advantage of its setting along 189 feet of shoreline on Island Creek.
Positioned to capture southern exposure, the home is filled with natural light and offers sweeping water views across one of the area's most beloved waterways, with direct access on Island Creek which
leads to the Choptank River. The thoughtfully designed modern farmhouse features 4 bedrooms and 3.5 bathrooms, blending comfort, functionality, and scenic waterfront living. At the heart of the home is a completely open great room, kitchen, and dining area, anchored by a gas fireplace and framed by large rear-facing windows that showcase the water views and bring in abundant natural light throughout the day. The home includes a dedicated office, mudroom, separate laundry room, and a walk-in pantry, offering thoughtful organization and convenience throughout the home. The first-floor primary suite is positioned to capture peaceful views of Island Creek and plenty of natural light. Step outside to the rear porch overlooking the water, the perfect place to enjoy your morning coffee, watch wildlife along the shoreline, or unwind in the evening as the sun reflects across the creek. Set on high ground with a protected shoreline and framed by mature oak

Overview

Property Status
For Sale
Lot Size
2.09 Acres
MLS ID
MDTA2013072
Property Type
Residential

Features & Amenities

Neighborhood
Talbot County
Architecture Styles
Cottage
Water Frontage
Creek
View Description
Water, Creek/Stream, Trees/Woods
Stories
1
Garage Spaces
2.0
Pool
None
Roof
Shingle
Lot Features
Waterfront
Parking
Garage, Driveway, Other, Attached
Heat Type
Electric, Forced Air
Air Conditioning
Other, Electric
Sewer
Septic Tank
School District
TALBOT COUNTY PUBLIC SCHOOLS
Sales Price
$2,650,000
Real Estate Tax
$4,444/yr
Zoning
RES

Downloads

SAILORS RETREAT ROAD

Schedule a Tour

We would love to help you see this beautiful home! As a full-service brokerage, we can help you tour. Please submit an offer, and answer questions about the buying process.

Thank you

for your interest in SAILORS RETREAT ROAD, OXFORD, MD 21654

SAILORS RETREAT ROAD
Navigate
A welcoming brick house with a classic porch.

Explore Talbot County

An elegant coastal escape defined by historic harbor towns, scenic waterscapes, and refined leisure.

read more

Mortgage Calculator

Estimate your monthly mortgage payment, including the principal and interest, property taxes, and HOA. Adjust the values to generate a more accurate rate.
$0,000 Your Payment 20 15 65
$0,000 Your Payment

I'm Interested In

SAILORS RETREAT ROAD

or
  • CallBrian Gearhart

    License #510143

    (410) 310-5179
  • Featured Properties

    • 6150 OXFORD ROAD For Sale

      $12,500,000

      6150 OXFORD ROAD, EASTON, MD 21601

      • 2 Beds
      • 3 Baths
      • 2,388 Sq.Ft.
    • 6010 Shipyard Ln For Sale

      $9,900,000

      6010 SHIPYARD LANE, EASTON, MD 21601

      • 5 Beds
      • 6 Baths
      • 14,935 Sq.Ft.
    • 27295 Southside Island Creek Rd For Sale

      $8,750,000

      27295 SOUTHSIDE ISLAND CREEK ROAD, TRAPPE, MD 21673

      • 6 Beds
      • 6 Baths
      • 9,566 Sq.Ft.
    • Ocean Gateway For Sale

      $8,000,000

      OCEAN GATEWAY, EASTON, MD 21601

    • BAR NECK ROAD For Sale

      $3,500,000

      BAR NECK ROAD, TILGHMAN, MD 21671

    • 26396 ST MICHAELS ROAD Pending

      $2,900,000

      26396 ST MICHAELS ROAD, NEWCOMB, MD 21653

      • 3 Beds
      • 3 Baths
      • 1,973 Sq.Ft.
    • 26396 ST MICHAELS ROAD Pending

      $2,900,000

      26396 ST MICHAELS ROAD, NEWCOMB, MD 21653

      • 3 Beds
      • 3 Baths
      • 1,973 Sq.Ft.
    • 21485 ISLAND CLUB ROAD For Sale

      $2,499,000

      21485 ISLAND CLUB ROAD, TILGHMAN, MD 21671

      • 5 Beds
      • 5 Baths
      • 4,303 Sq.Ft.
    • 5728 PIRATES COVE ROAD Pending

      $2,395,000

      5728 PIRATES COVE ROAD, OXFORD, MD 21654

      • 3 Beds
      • 3 Baths
      • 2,693 Sq.Ft.
    • 29328 Matthewstown Rd For Sale

      $2,300,000

      29328 MATTHEWSTOWN ROAD, EASTON, MD 21601

      • 6,400 Sq.Ft.
    • OXFORD ROAD For Sale

      $2,000,000

      OXFORD ROAD, OXFORD, MD 21654

    • 4480 Bachelors Point Rd For Sale

      $1,945,000

      4480 BACHELORS POINT ROAD, OXFORD, MD 21654

    • 6119 Country Club Dr For Sale

      $1,895,000

      6119 COUNTRY CLUB DRIVE, EASTON, MD 21601

      • 3 Beds
      • 4 Baths
      • 2,568 Sq.Ft.
    • 7696 Ocean Gateway #1 For Sale

      $1,795,000

      7696 OCEAN GATEWAY, EASTON, MD 21601

      • 1,605 Sq.Ft.
    • ST MICHAELS ROAD For Sale

      $1,795,000

      ST MICHAELS ROAD, NEWCOMB, MD 21653

    • Calvert Street For Sale

      $1,650,000

      CALVERT STREET, EASTON, MD 21601

    • 503 Cynwood Dr #1 For Sale

      $1,595,000

      503 CYNWOOD DRIVE 1, EASTON, MD 21601

      • 5,508 Sq.Ft.
    • Ocean Gtwy For Sale

      $1,500,000

      OCEAN GATEWAY, EASTON, MD 21601

    • 29569 PORPOISE CREEK ROAD For Sale

      $1,495,000

      29569 PORPOISE CREEK ROAD, TRAPPE, MD 21673

    • 507 Dover Rd For Sale

      $1,450,000

      507 DOVER ROAD, EASTON, MD 21601

      • 6,030 Sq.Ft.
    • 28701 EDGEMERE ROAD For Sale

      $1,390,000

      28701 EDGEMERE ROAD, EASTON, MD 21601

      • 3 Beds
      • 2 Baths
      • 4,008 Sq.Ft.
    • 28711 HOPE CIRCLE For Sale

      $1,235,000

      28711 HOPE CIRCLE, EASTON, MD 21601

      • 4 Beds
      • 4 Baths
      • 4,500 Sq.Ft.
    • 7605 PENDLETON FARM LANE For Sale

      $1,199,000

      7605 PENDLETON FARM LANE, EASTON, MD 21601

      • 3 Beds
      • 3 Baths
      • 2,840 Sq.Ft.
    • 9043 Ocean Gateway For Sale

      $1,149,000

      9043 OCEAN GATEWAY, EASTON, MD 21601

    • 1103 S Talbot St For Sale

      $1,100,000

      1103 S TALBOT STREET, SAINT MICHAELS, MD 21663

      • 6,950 Sq.Ft.
    • 0 Hope Cir For Sale

      $1,095,000

      0 HOPE CIRCLE, EASTON, MD 21601

      • 3 Beds
      • 3 Baths
      • 2,780 Sq.Ft.
    • Enniskillen Rd For Sale

      $995,000

      ENNISKILLEN ROAD, EASTON, MD 21601

    • 28715 JACKS FIELD ROAD For Sale

      $949,000

      28715 JACKS FIELD ROAD, WYE MILLS, MD 21679

      • 5 Beds
      • 3 Baths
      • 2,981 Sq.Ft.
    • 0000 Sailors Retreat Rd For Sale

      $899,000

      0000 SAILORS RETREAT ROAD, OXFORD, MD 21654

    • 7923 INDUSTRIAL PARK ROAD For Sale

      $895,000

      7923 INDUSTRIAL PARK ROAD, EASTON, MD 21601

      • 2 Baths
      • 7,010 Sq.Ft.
    • 301 GOLDSBOROUGH STREET Pending

      $849,900

      301 GOLDSBOROUGH STREET, EASTON, MD 21601

      • 5,012 Sq.Ft.
    • 406 S MORRIS STREET Pending

      $789,999

      406 S MORRIS STREET, OXFORD, MD 21654

      • 3 Beds
      • 4 Baths
      • 2,088 Sq.Ft.
    • 24977 Back Creek Dr For Sale

      $749,999

      24977 BACK CREEK DRIVE, SAINT MICHAELS, MD 21663

      • 4 Beds
      • 4 Baths
      • 3,010 Sq.Ft.
    • 28959 JASPER LANE For Sale

      $749,000

      28959 JASPER LANE, EASTON, MD 21601

      • 3 Beds
      • 3 Baths
      • 2,819 Sq.Ft.
    • 18 SANDY LANE For Sale

      $699,000

      18 SANDY LANE, EASTON, MD 21601

      • 3 Beds
      • 3 Baths
      • 1,872 Sq.Ft.
    • 13 SANDY LANE For Sale

      $659,000

      13 SANDY LANE, EASTON, MD 21601

      • 3 Beds
      • 2 Baths
      • 1,606 Sq.Ft.
    • 30224 CHESTNUT RIDGE LANE Active Under Contract

      $595,000

      30224 CHESTNUT RIDGE LANE, TRAPPE, MD 21673

      • 4 Beds
      • 3 Baths
      • 2,878 Sq.Ft.
    • 2669 OCEAN GATEWAY For Sale

      $569,000

      2669 OCEAN GATEWAY, TRAPPE, MD 21673

      • 4 Beds
      • 3 Baths
      • 3,429 Sq.Ft.
    • 5648 TRAFALGAR CIRCLE For Sale

      $544,888

      5648 TRAFALGAR CIRCLE, TILGHMAN, MD 21671

      • 3 Beds
      • 2 Baths
      • 2,068 Sq.Ft.
    • 3853 RUMSEY DRIVE For Sale

      $524,900

      3853 RUMSEY DRIVE, TRAPPE, MD 21673

      • 4 Beds
      • 3 Baths
      • 2,142 Sq.Ft.
    • 5654 TRAFALGAR CIRCLE For Sale

      $499,888

      5654 TRAFALGAR CIRCLE, TILGHMAN, MD 21671

      • 3 Beds
      • 2 Baths
      • 1,710 Sq.Ft.
    • 29830 Hillary Ave For Sale

      $499,000

      29830 HILLARY AVENUE, EASTON, MD 21601

      • 3 Beds
      • 3 Baths
      • 3,052 Sq.Ft.
    • 3962 MAIN STREET For Sale

      $499,000

      3962 MAIN STREET, TRAPPE, MD 21673

      • 3 Beds
      • 3 Baths
      • 2,138 Sq.Ft.
    • 7389 Karen Ave Pending

      $499,000

      7389 KAREN AVENUE, EASTON, MD 21601

      • 3 Beds
      • 3 Baths
      • 3,052 Sq.Ft.
    • 6343 BOZMAN NEAVITT ROAD Pending

      $495,500

      6343 BOZMAN NEAVITT ROAD, NEAVITT, MD 21652

      • 2 Beds
      • 1 Bath
      • 960 Sq.Ft.
    • 8800 ROUNDHOUSE CIRCLE For Sale

      $495,000

      8800 ROUNDHOUSE CIRCLE, EASTON, MD 21601

      • 4 Beds
      • 3 Baths
      • 2,342 Sq.Ft.
    • 7364 OCEAN GATEWAY For Sale

      $475,000

      7364 OCEAN GATEWAY, EASTON, MD 21601

      • 3 Beds
      • 2 Baths
      • 2,676 Sq.Ft.
    • 100 Division, E For Sale

      $455,000

      100 Division, E, Oxford, MD 21654

      • 3 Beds
      • 2 Baths
      • 1,568 Sq.Ft.
    • 8388 COLONY CIRCLE For Sale

      $439,000

      8388 COLONY CIRCLE, EASTON, MD 21601

      • 4 Beds
      • 3 Baths
      • 2,277 Sq.Ft.
    • 29736 TALLULAH LANE For Sale

      $419,000

      29736 TALLULAH LANE, EASTON, MD 21601

      • 4 Beds
      • 3 Baths
      • 1,920 Sq.Ft.
    View All Properties

    Follow Us On Instagram